A vendre
Maison 4 pièces 100 m²
Saint-Pierre400 000 €
Annonce agence - Publié par Import E.
Partager sur les réseaux
Général
- A
- B
- C
- D
- E
- F
- G
L'avis du professionnel
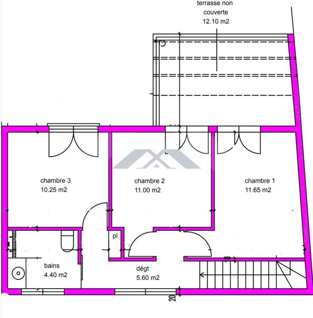
MAXImmo vous propose dans le secteur très côté de la Ligne Paradis, cette splendide maison neuve d'environ 127 m².
Elle est construite sur deux niveaux, au rez-de-chaussée séjour cuisine d'environ 45 m² ouverte sur une terrasse d'environ 13 m². La salle de bains est également pourvu
A l'étage, il y a 3 chambres d'environ 11 m² chacune, une chambre est ouverte sur une terrasse d'environ 13 m².
Douche italienne d'environ 5 m² ainsi qu'un dégagement se situent à l'étage.
Maison vendue avec garantie décennale et dommage ouvrage, possibilité de faire une défiscalisation girdin IS.
Livraison prévue en 2025.
Prix TTC et Honoraires à charge vendeur TTC Mandat n° 12454
Réseau MAXImmo - Pour plus de renseignements contactez Merwan au 06 93 83 29 29 ou par mail à merwan@maximmo.re
Plus d'informations et consultation de nos tarifs sur www.maximmo.re
Les informations sur les risques auxquels ce bien est exposé sont disponibles sur le site Géorisques : www.georisques.gouv.fr'
Honoraires à la charge du vendeur. Non soumis au DPE. Les informations sur les risques auxquels ce bien est exposé sont disponibles sur le site Géorisques : georisques.gouv.fr.
Votre conseiller MAXImmo : Merwan CORRONT
Agent commercial (Entreprise individuelle)
Avantages
- Balcon
Vivre à Saint-Pierre
Pas d'actualités pour le moment
Découvrez les avis des habitants de Saint-Pierre (97410,97432)
"C'est une ville agréable qui est proche de tout et qui ne manque de rien. C'est le top !" Lire la suite...
"Ici chaque moment est savouré pleinement. Nous les Réunionnais, on sait profier de la vie à fond, et quelle vie !!" Lire la suite...
"La coté positif c'est qu'on mange très bien à Saint-Pierre. Tous les meilleurs restos sont ici selon moi, pas besoin d'aller voir ailleurs" Lire la suite...
"Le lagon de Saint-Pierre est un spectacle magique pour les yeux ! on en s'en lasse pas, même avec les années" Lire la suite...
"Le souci de cette ville je dirais que c'est la fluidité de la ciruculation qui laisse à désirer... malgré les efforts constants des autorités pour le..." Lire la suite...
Statistiques sur Saint-Pierre
84 077
22 997
874 h/km²
-
0 € / m²
70.3 %
* Source : INSEE