A louer
Bureaux 0 pièce 920 m²
Lamentin28 540 €
Annonce agence - Publié par Import E.
Partager sur les réseaux
Général
- A
- B
- C
- D
- E
- F
- G
L'avis du professionnel
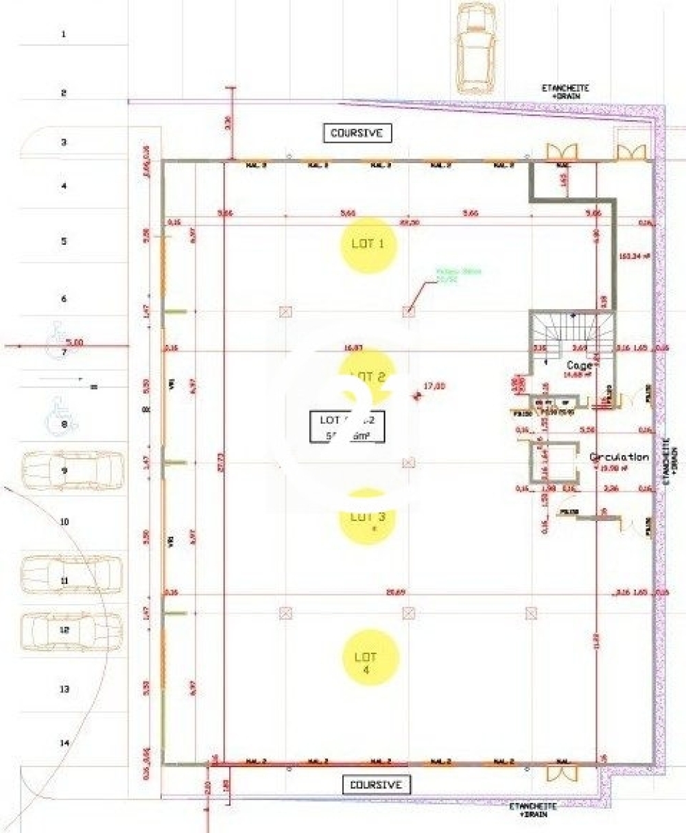
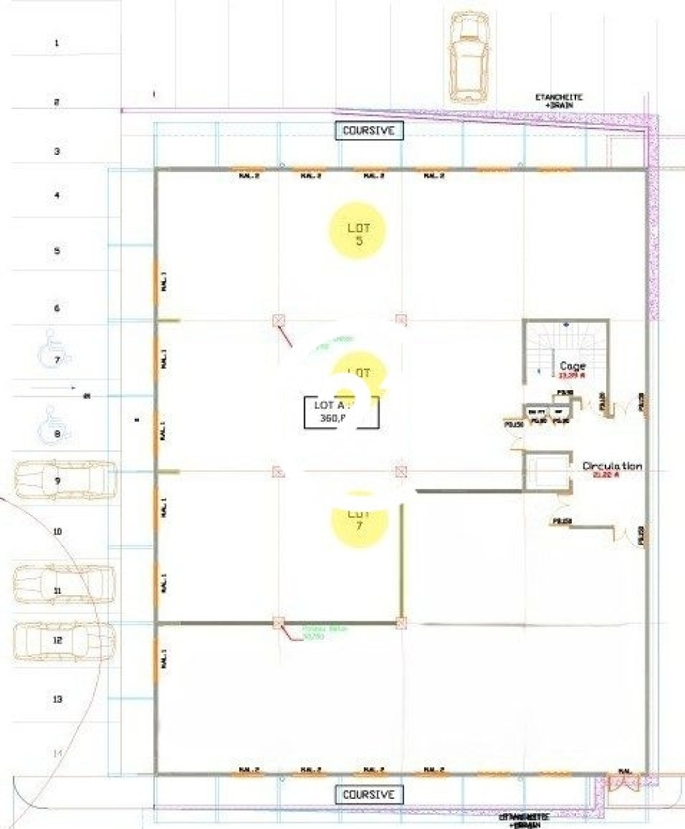
CENTURY 21 vous propose à la location deux plateaux de bureaux idéalement situés dans le quartier d'Acajou Sud, au Lamentin, au sein d'un immeuble récent et fonctionnel.
- Rez-de-chaussée : surface de 360 m². - 1er étage : surface de 560 m². Ensemble de 920 m² de bureaux modulables, parfaits pour accueillir une activité tertiaire ou un siège d'entreprise. Le site bénéficie de 50 places de stationnement privatives, offrant un réel confort pour vos collaborateurs et visiteurs. Disponibilité : septembre 2025 - Loyer mensuel : 35 966 € TTC charges comprises (hors consommation d'eau, d'électricité et abonnements télécoms). Excellente accessibilité et visibilité, à proximité des axes routiers majeurs et des zones d'activités.
Pour toute information complémentaire ou pour organiser une visite, n'hésitez pas à nous contacter.
Honoraires de 55 738 € à la charge du locataire. Dépôt de garantie 57 080 €. Non soumis au DPE. Les informations sur les risques auxquels ce bien est exposé sont disponibles sur le site Géorisques : georisques.gouv.fr.
Avantages
Vivre à Lamentin
Pas d'actualités pour le moment
Découvrez les avis des habitants de Lamentin (97232)
"C’est peut-être pas la première destination touristique de l’île, mais les habitants ont un sens de l’accueil qui te fait sentir chez toi. Les événeme..." Lire la suite...
"Le côté industriel de Lamentin, c’est impossible à ignorer. c’est le cœur économique de l’île mais bon, il faut avouer que niveau charme, on a vu plus..." Lire la suite...
"Se déplacer à Lamentin, ça peut être un peu le bazar, surtout aux heures de pointe. L’aéroport attire pas mal de trafic, et les routes peuvent vite se..." Lire la suite...