A vendre

Terrain 0 pièce 243 m²

Saint-Louis

85 000 €

Annonce agence - Publié par Import E.

Informations
Mis à jour 25 déc. 2025
Disponibilité Non précisé
Référence VT918-EXPFRANCE
Contact
Gestionnaire du bien Autre
N° de téléphone jose.stanca@expfrance.fr
Email -
Contacter l'annonceur
Prendre rendez-vous

Partager sur les réseaux

Général

Prix de vente 85 000 €
Honoraires 9.96
Ville Saint-Louis
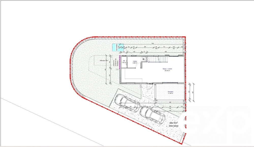
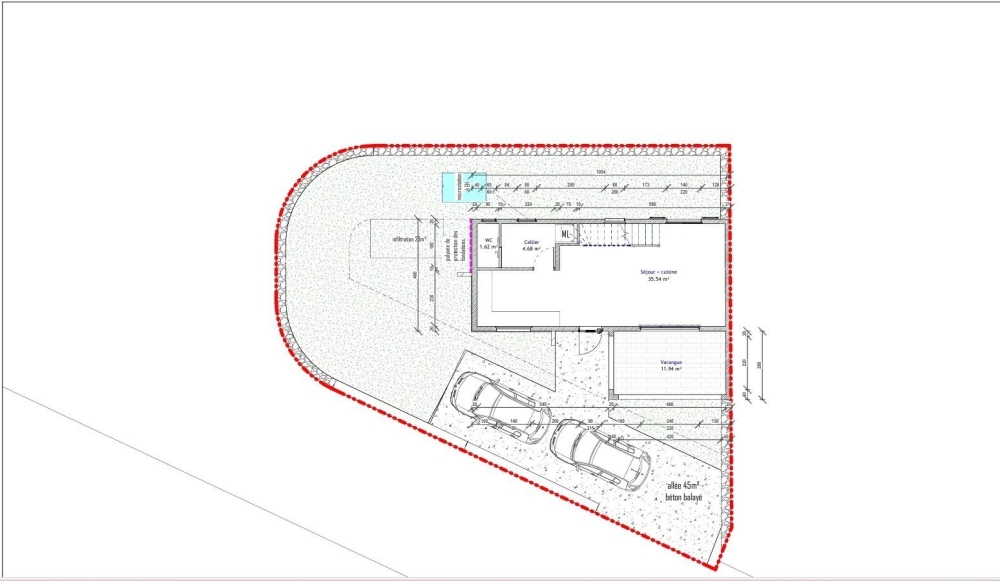
Surface 243 m²
Toilette 692845115
Bilan énergetique
  • A
  • B
  • C
  • D
  • E
  • F
  • G

L'avis du professionnel

? Vue mer | Idéal Primo-accédants & Investisseurs Girardin IS

? Situé dans le secteur calme et résidentiel de Roche Maigre à Saint-Louis, ce terrain de 243 m² bénéficie d'un environnement paisible et surtout… d'une vue mer dégagée, rare dans le secteur à ce prix !

?? À proximité immédiate de toutes les commodités (commerces, écoles, transports), il allie confort de vie et emplacement stratégique.

? Zonage UC2 – Règlement de construction :

Hauteur max : 6 m à l'égout du toit / sommet de l'acrotère

Jusqu'à 10 m au faîtage

? Une opportunité idéale :
? Pour les primo-accédants qui rêvent de construire dans un cadre agréable avec vue
? Pour les investisseurs souhaitant profiter du dispositif Girardin à l'IS (fiscalité avantageuse en zone DOM)

? Les + :

Vue mer

Quartier résidentiel

Terrain plat et bien placé

Potentiel de construction optimisé.

? À voir rapidement ! Ce terrain est une perle pour construire ou investir malin à Saint-Louis.

Honoraires inclus de 9.96% TTC à la charge de l'acquéreur. Prix hors honoraires 77 300 €. Les informations sur les risques auxquels ce bien est exposé sont disponibles sur le site Géorisques : georisques.gouv.fr. Ce bien vous est proposé par un agent commercial (Entreprise individuelle).

Votre conseiller eXp France : José STANCA
Agent commercial (Entreprise individuelle)
RSAC 894206317 ST PIERRE

Avantages

  • Vue dégagée



Statistiques sur Saint-Louis

illustration nombre d'habitant

53 935

illustration nombre d'habitant

15 223

illustration nombre d'habitant

543 h/km²

illustration nombre d'habitant

-

illustration nombre d'habitant

0 € / m²

illustration nombre d'habitant

64.7 %

* Source : INSEE