A vendre
Terrain 0 pièce 405 m²
Tampon113 000 €
Annonce agence - Publié par Import E.
Partager sur les réseaux
Général
- A
- B
- C
- D
- E
- F
- G
L'avis du professionnel
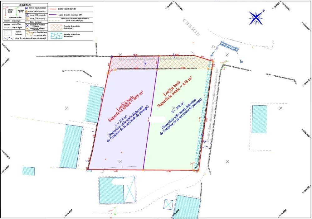
Située sur les hauteurs du Tampon, dans le quartier recherché de Pont d'Yves, découvrez cette jolie parcelle plate de 405 m².
À environ 700 mètres d'altitude, vous bénéficierez d'un cadre paisible avec la possibilité d'avoir une vue dégagée mer et montagne.
? Informations principales :
- Superficie : 405 m²
- Non viabilisé
- Terrain plat, idéal pour implanter une maison moderne ou traditionnelle.
- Zone Uc (PLU) :
- Emprise au sol non réglementée
- Auteur des constructions : 9 m à l'égout du toit / 13 m au faîtage
- Annexes et dépendances : 3,5 m max
? Atouts du secteur :
Environnement calme et serein
Altitude agréable (700 m)
Vue mer et montagne possible
? Investir grâce au Girardin à l'IS :
Ce dispositif de défiscalisation ultramarin vous permet d'obtenir un crédit ou une réduction d'impôt sur les sociétés en investissant dans une construction neuve destinée à la location.
Les conditions (durée de mise en location, plafonds de loyers et de ressources) garantissent un cadre sécurisé et avantageux.
? Pour vous accompagner, nous pouvons vous mettre en relation avec un professionnel qualifié capable de créer la société adaptée à ce type d'investissement.
? Un terrain qui allie cadre de vie exceptionnel, investissement rentable et accompagnement sur mesure !
Honoraires à la charge du vendeur. Les informations sur les risques auxquels ce bien est exposé sont disponibles sur le site Géorisques : georisques.gouv.fr. Ce bien vous est proposé par un agent commercial (Entreprise individuelle).
Votre conseiller eXp France : José STANCA
Agent commercial (Entreprise individuelle)
RSAC 894206317 ST PIERRE
Avantages
- Vue dégagée
Vivre à Tampon
Pas d'actualités pour le moment
Découvrez les avis des habitants de Tampon (97418,97430)
"C'est le spot idéal pour les fans de randonnées. La ville elle-même est tranquille, mais je trouve que c'est cette tranquillité qui fait son charme" Lire la suite...
"C'est un peu en retraît mais on a vraiment tout ici , pas besoin de faire des kilomètres pour trouver tout ce dont on a besoin" Lire la suite...
"Cette proximité avec la nature te rappelle que, oui, tu vis sur une île incroyable! C'est grandiose !" Lire la suite...
"Cette ville te surprend par son atmosphère un brin plus fraîche et par son paysage verdoyant à perte de vue.. que c'est beau!" Lire la suite...
"J'adore cette ville parce qu'elle est entourée de verdure.. on s'y sens bien à toutes les périodes de l'année" Lire la suite...